Zostało mało czasu!
0
0
dni
0
0
godzin
0
0
minut
0
0
sekund
Spraw bliskim radość
zanim będzie za późno!
Kup prezent
Zamknij

Działka budowlana do wynajęcia/dzierżawy w centrum Legnicy

Data dodania: 2025-10-12 11:16:02

1500 zł zdjecie ogloszenia

Opis

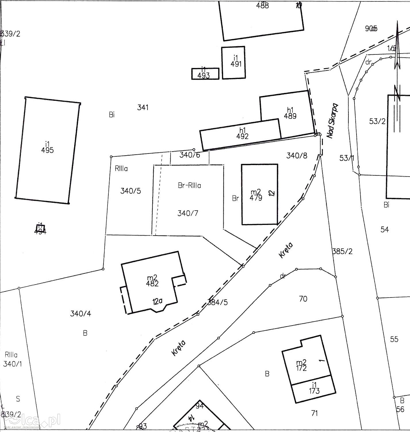
Do wynajęcia lub wydzierżawienia atrakcyjna działka budowlana o numerze ewidencyjnym 340/7, położona w centrum Legnicy, przy ulicy Krętej 12, o powierzchni 340 m2. Idealna zarówno pod budowę domu, jak i działalność usługową. Działka znajduje się w cichej i spokojnej okolicy z zabudową jednorodzinną.

Najważniejsze atuty nieruchomości:
- działka o regularnym, kwadratowym układzie (17 × 17 m) z wygodnym dojazdem (szerokość wjazdu 6 m),
- miejscowy plan zagospodarowania przestrzennego: 1MNU – zabudowa mieszkaniowa i usługowa,
- doskonała lokalizacja, w pobliżu sklepy (Lidl, Biedronka, B1), szkoły, przedszkole, apteki, park miejski i tereny rekreacyjne,
- idealna dla inwestorów, rodziny, dewelopera lub osób planujących budowę domu,
- czysta, zadbana, gotowa do zabudowy, z bezpośrednim dostępem do asfaltowej drogi publicznej,
- media w drodze: prąd, gaz, woda, kanalizacja
- w 2022 r. uzyskano decyzję Prezydenta Miasta Legnicy na trwałe wyłączenie gruntu z produkcji rolniczej – działka przygotowana formalnie pod inwestycję,

DLA KOGO?
- dla rodzin planujących budowę domu,
- dla inwestorów i deweloperów,
- dla przedsiębiorców poszukujących gruntu pod usługi.

Ta oferta to doskonała inwestycja dla osób szukających komfortowego miejsca do życia lub atrakcyjnego gruntu pod działalność usługową w centrum miasta z potencjałem wzrostu wartości. Działka posiada znakomite warunki do szybkiego rozpoczęcia budowy.

Cena wynajmu lub dzierżawy wynosi 1500 zł za miesiąc.

Zadzwoń już teraz pod numer telefonu 880-530-003 i umów się na oglądanie działki budowlanej lub uzyskaj więcej informacji.

Kontakt ze sprzedającym

880Pokaż numer
Promuj to ogłoszenie